Eladó 1000m² telephely, iroda, műhely Csepel Gyártelepen

4333 Nyomtatás Ajánlás Facebook

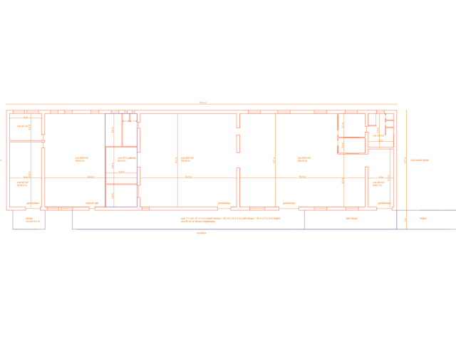
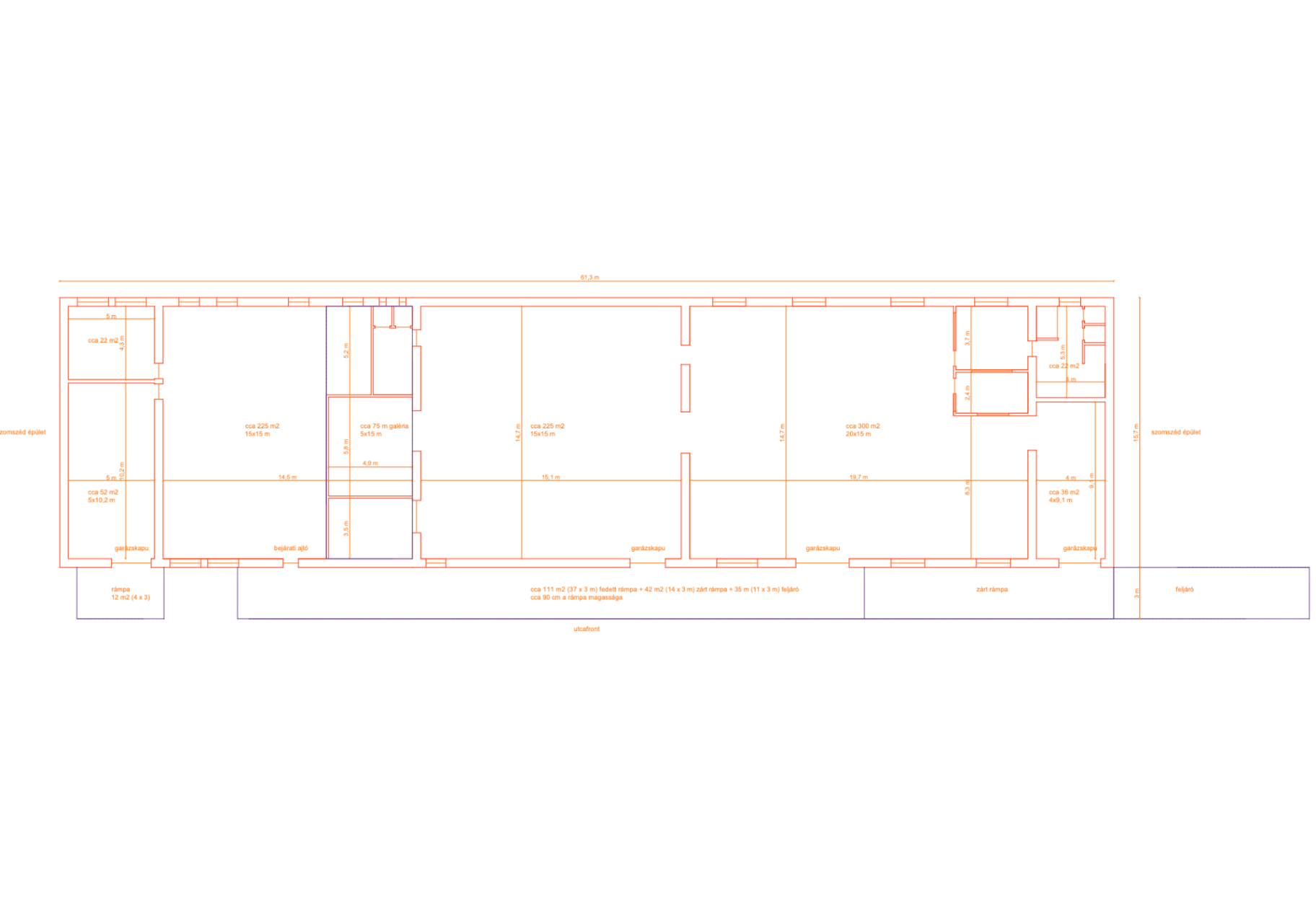
Eladásra kínálunk egy közel 1000 m² alapterületű, korszerűen szigetelt csarnokot a volt Csepel Művek területén, amely tömegkorlátozás nélkül, könnyen megközelíthető.

Az épület főbb jellemzői:
Méret: kb. 60 × 15 m
Falazat: tégla főfalazat, 10 cm hőszigeteléssel
Tetőszerkezet: acél rácsos szerkezet, 20 cm kőzetgyapot és 10 cm szendvicspanel héjazattal
Világos belső terek: hőszigetelt tetőbevilágítók
Funkció: a terület kb. 25%-a bemutatóterem, 75%-a gyártócsarnokként működik
Rugalmas kialakítás: öt különálló egységre osztható (3 nagyobb, 2 kisebb), belső átjárással
Kapuk: négy egység motoros, szekcionált garázskapun keresztül elérhető, a bemutatóterem külön bejárattal rendelkezik

Komfort és technikai felszereltség:
- Bemutatóteremhez tartozó újszerű konyha

Fűtés/hűtés:
35 kW gázkazán
35 kW hőszivattyú, mely hűtésre is alkalmas
Radiátoros és fancoilos rendszer, zónánként szabályozható
2 db klíma a bemutatóteremben

Energiaellátás:
18 kW napelemrendszer (2023), szaldóelszámolással – az éves villamosenergia-felhasználás gyakorlatilag nulla
3 × 80 A ipari áram, bővíthető kapacitással
Szociális helyiségek:
Bemutatóterem: 2 WC, dupla kézmosó
Csarnok: 2 WC, kézmosó, zuhanyzó, öltöző
Galéria: 75 m² alapterülettel
Magasnyomású levegőrendszer kiépítve

Rámpa és rakodási lehetőségek:
Teljes hosszban fedett, részben zárt 3 m mély rámpa (150 m²), ebből kb. 42 m² oldalról is zárt
3 db rakodórámpa, amelyek platós teherautók békával való rakodását is biztosítják

További fotókat és információkat telefonos egyeztetést követően tudok küldeni!

Az ingatlan előzetes egyeztetést követően rugalmasan megtekinthető.

Gergics Róbert
PRÉMIUM

Gergics Róbert

Karrierigazgató
Budapest
+36 (20) 262 6304
Észrevétel a hirdetéssel kapcsolatban
Egy ingatlanos naplója