Családi ház, birtok, műhely, cégvásárlási opcióval eladó

1852 Nyomtatás Ajánlás Facebook

Ilk külterületén, páratlan nyugalmat árasztó, teljesen közművesített környezetben eladó egy 2003-ban egyedi tervek alapján épült, masszív szerkezetű, igényes kialakítású, nettó 278 m²-es családi ház, a közvetlenül kapcsolódó 5 hektáros birtokkal és egy 290 m²-es műhellyel.
Az ingatlanhoz opcióként (vagy önállóan) megvásárolható egy 30 éve működő, tiszta, tehermentes, alacsony fenntartású, stabil múltú Kft. is, amely ideális választás pályázatra készülőknek, induló vállalkozóknak, befektetőknek, akik tiszta múltú, rendezett kisvállalkozást, vagy kész, működő céget keresnek.

A birtok és az ingatlan együttesen ideális gazdálkodóknak, állattartóknak, gépészeti vagy kézműves vállalkozóknak, telephelyet keresőknek, illetve mindenkinek, aki természetközeli, mégis komplex, működő infrastruktúrával rendelkező ingatlant keres.

Az épület főbb jellemzői
• 30 cm vastag B30 Porotherm falazat – időtálló, stabil szerkezet
• Fenyőfa nyílászárók hőszigetelt üvegezéssel
• Galériás nappali impozáns belmagassággal
• Erdélyi mestercserépkályha a nappaliban – különleges hangulat, kiváló hőleadás
• Fűtés: nagy teljesítményű gázkazán + vegyes tüzelésű kazán
• Melegvíz: villanybojler + gázkazán
• Zárt, déli tájolású télikert háromirányú kilátással a kertre
• Parkosított udvar, rendezett környezet, 3 oldalról diófaliget
Átgondolt, élhető térkialakítás, melyben minden megvan:
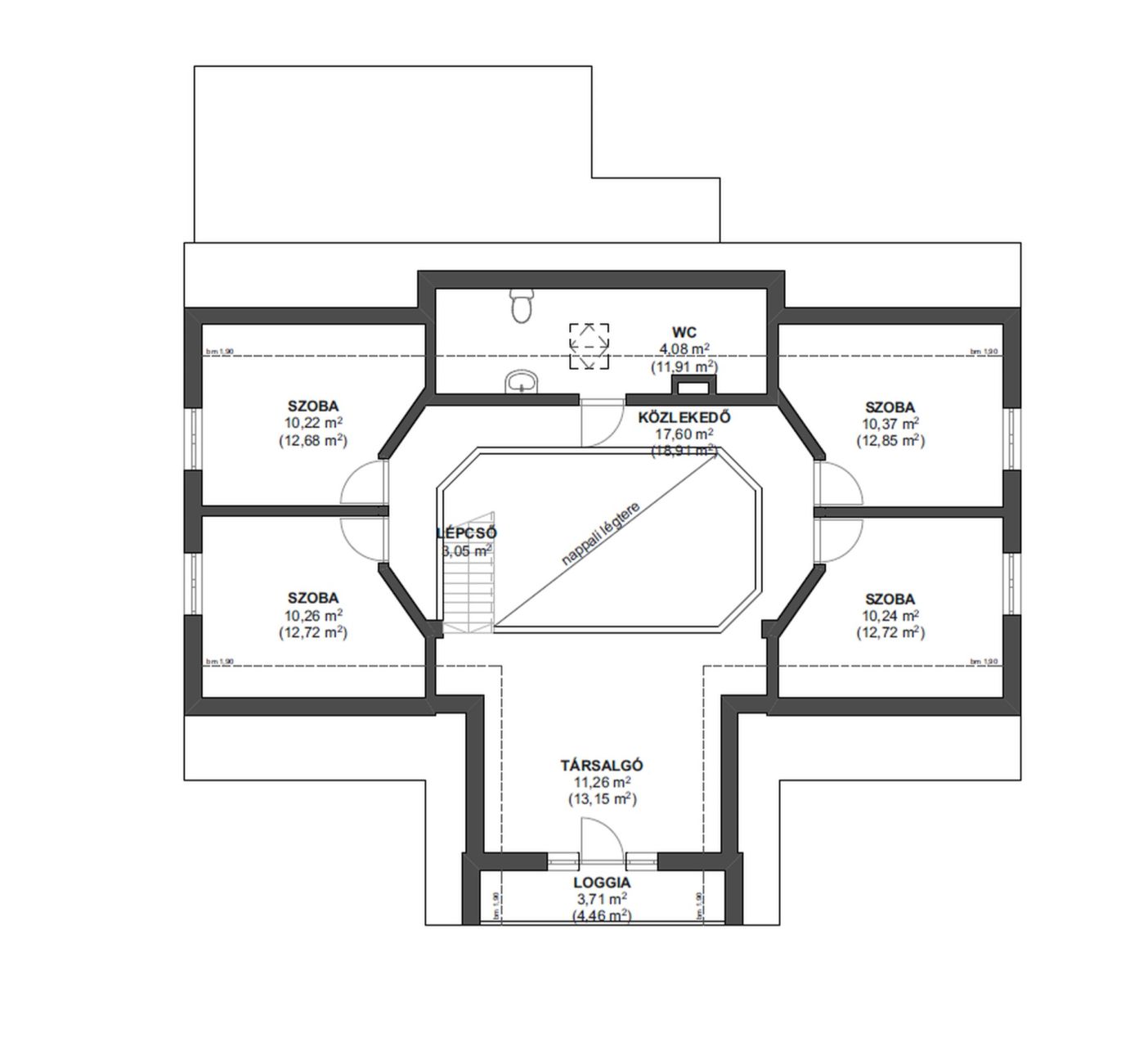
Földszint: nappali – étkező – galériás légtér, 3 különnyíló hálószoba, konyha + kamra, fürdőszoba + WC, közlekedő + kazánház, zárt terasz / télikert
Emelet: 4 hálószoba, nappali, fürdőszoba + tároló, loggia

A ház mögött található egy külön bejáratú pince és garázs (39 m2), tárolóhelyiségekkel és szerszámos kamrákkal (48 m2) együtt. Ennek az épületnek a tetején egy 7.000 literes víztározó található, amely egy 45 méter mély kútról tölthető fel. Az épület keleti oldalán található továbbá egy 10 cm-es átmérőjű csappal ellátott kifolyó, ami lehetőséget ad a permetező tartályok feltöltésére. Az említett kút ellát további 3 kerti csapot is, ahonnan a kert locsolására is lehetőség van.

5 ha terület – számtalan gazdálkodási lehetőség
A házhoz közvetlenül csatlakozó 5 hektár saját terület számtalan lehetőséget kínál:
- 2,5 ha rét
- 2 ha kaszáló
- 2.000 m² gazdasági terület, melyen:
- 290 m²-es, 4,5 m belmagasságú műhely/raktárépület
- 32 m²-es, 3 helyiségből álló szociális épület található

Ideális mezőgazdasági tevékenységre, állattartásra, géptárolásra, telephely létrehozására, pályázatokhoz, gazdaságindításhoz.
A telephelyen többcélú gazdálkodáshoz szükséges géppark, kis- és nagygépek (kisteherautó traktor, targonca, stb.) , kéziszerszámok is rendelkezésre állnak, amelyek a teljes terület megvásárlása esetén egyedi ármegállapodás függvénye.
A teljes terület drótkerítéssel körbekerített, belső úthálózata bazaltzúzalékos, gépekkel könnyen járható.

A hirdetés részeként — külön egyeztetéssel opcionálisan megvásárolható, 30 éve működő, rendezett Kft, amely:
✔ tiszta, tartozásmentes
✔ stabil, alacsony költségű működésű
✔ kis adminisztrációjú cég
✔ ideális pályázati induláshoz
✔ ideális kezdő vagy bővítő vállalkozóknak
✔ befektetők által keresett kategória

Tökéletes választás lehet azoknak, akik az ingatlanon azonnal vállalkozási tevékenységet indítanának, pályáznának vagy már meglévő üzletág mellé keresnek tiszta hátterű kft.-t.

A családi ház besorolása lakóház, udvar, gazdasági épület, így lehetőség nyílhat otthonteremtési támogatás igénylésére is, mivel Ilk település szerepel a Falusi CSOK-ra vonatkozó „preferált kistelepülések” között. (Banki elő-értékbecslés szükséges!)

Ez az ingatlan kivételes ajánlat mindazoknak, akik szeretnék a minőségi otthon kényelmét a természet közelségével és akár egy saját birtok adta lehetőségekkel ötvözni.
Érdemes megnézni, hívjon a hét bármely napján időpont egyeztetés céljából.

Gorzsás Zsuzsanna

Gorzsás Zsuzsanna

2 éve a Városi Ingatlaniroda tagja
Ingatlanértékesítő
Debrecen
+36 (70) 708 1730
Észrevétel a hirdetéssel kapcsolatban
Egy ingatlanos naplója